Automatically generate schematic views
| Product | InstalSystem 5 |
| Type of article | FUNCTIONS AND TOOLS |
| Source for translation | REVISION Rev. 17.1 |
Description
This article describes the method of creating automatic schematic views of installations based on an installation model of Application: Heating systems or Application: Cooling systems type with an option to manually edit these views, insert fittings and regenerate the view at any time.
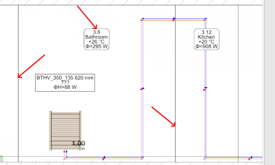
Schematic views of installations are generated in the 2D editor using Starting point (thermal installations) components.
This functionality is currently under development and was included in the BETA version.
Location in the program
Icons of components and of functions for controlling the automatic generation of schematic views are available in the 2D editor window on the Main tools bar in the Schematic view section within the Convectional, Rad.-floors,walls, Rad.-ceilings editing scopes.

The generated Sheet type: Schematic view components are at the bottom of the sheet list.

Examples of use
Check connections
Checking the correctness of connections using the Check connections operation or by pressing Shift+F2 is necessary for the proper generation of the schematic view. The project file can include messages on error relevance, but these messages cannot relate to connection errors.
Presentation of the basic components and functions for controlling automatic generation of schematic views
Starting point (thermal installations)
This is the starting point in the installation from which the schematic view is generated. It has to be assigned a unique symbol. Many Starting point (thermal installations) components can be inserted, and each of them generates a separate Sheet type: Schematic view ![]()
The Starting point (thermal installations) can be placed on:
- Leading pipe-run
Indication of the pipe-run which has a priority when generating a schematic view. This is important when generating an asymmetrical installation (supply and return pipe-runs arranged along different routes). All junctions (tees, crosspieces) are also marked on leading pipe-runs.
4. Junction (tee)
The scope can be reduced:- Installation between source and risers - generates the schematic view from the indicated point to risers, excluding the risers
- Risers - generates the schematic view from the indicated point to risers, including the risers
- Installation behind risers - generates the schematic view from the indicated point beyond the risers to terminal units. If an installation includes stations, the schematic view is terminated at the station, if the installation includes manifolds, the schematic view is terminated at the manifold.
- Installation behind flat stations - generates the schematic view from the indicated point to the station including the installation beyond the station (checkbox Installation behind risers must be checked)
- Installation behind manifold - generates the schematic view beyond the manifolds (checkbox Installation behind risers must be checked)
- Control over automatic labelling.

5. Schematic view - labels control - Apparent shift
Enables display in the schematic view of pipe-runs that are on the same level (elevation). Does not affect the elevation of the pipe-run in the model. - Show room extent
Marked rooms and their labels.
8. Show room extent 
9. Show room extent - room marked in the schematic view - Generate schematic views
Unchecking this option disables the generation of the schematic view during subsequent generations, e.g. new settings for the automatic schematic view control functions will not be taken into account. However, disabling this option does not affect installation components. The installation components are refreshed automatically, i.e. the number of installation components in the model always corresponds to the number of installation components in the schematic view. If this option is disabled, a padlock icon is shown in the sheet selection list
.
10. Generate schematic views
Control point
Enables controlling the direction of generation of individual pipe feeds on the schematic view and modification of the leading route. It must be placed on the leading pipe-run. The control point changes the course of the schematic view starting from the junction beyond which it was inserted. Many Control point components can be inserted and they can be placed in a Sheet type: Schematic view or a Sheet type: Plan view.

- Direction.
Specifies, for instance, whether a part of an installation (e.g.: Riser) is to be treated as placed to the right or to the left of the Source. Similarly, one can decide whether a part of the installation is to the right or to the left of a Riser. The video shows how two risers are moved in the schematic view to the left of the source.
- Disconnect on schematic view.
Enables modifying the leading route in the schematic view. The video shows how the leading route is changed in such a way that the critical route is presented as the first one.
Endpoint
The schematic view of the part of installation that is beyond the Endpoint is not generated. This part of installation is represented by a Fragment of installation. The Endpoint must have a unique symbol assigned.
The video shows how a riser is removed from the schematic view.
Parts of installation that are not subject to automatic generation of schematic views
- Installations with ceiling panels.
- Installations with wall panels.
These parts are automatically terminated with a Fragment of installation.
Manual editing and configuring
- Inserting independent components.
The following components can be placed in a Sheet type: Schematic view:- additional labels (e.g.: pipe-run labels). The positions of the inserted labels can also be changed - these positions are maintained after the schematic view is regenerated,
- valves,
- fittings placed on pipe-runs,
- radiator fittings.
Additional information
- Project file created with InstalSystem 4 which includes a Sheet type: Schematic view loaded into InstalSystem 5.
Such a sheet is not converted into a Sheet type: Schematic view of InstalSystem 5 and it is removed when loading - appropriate diagnostic message is displayed.


