Installation with cooling radiant and panel systems in multifunctional building
| Product | InstalSystem 5 |
| Type of article | SAMPLE PROJECT |
| Source for translation | 2020-03-06 |
Project description
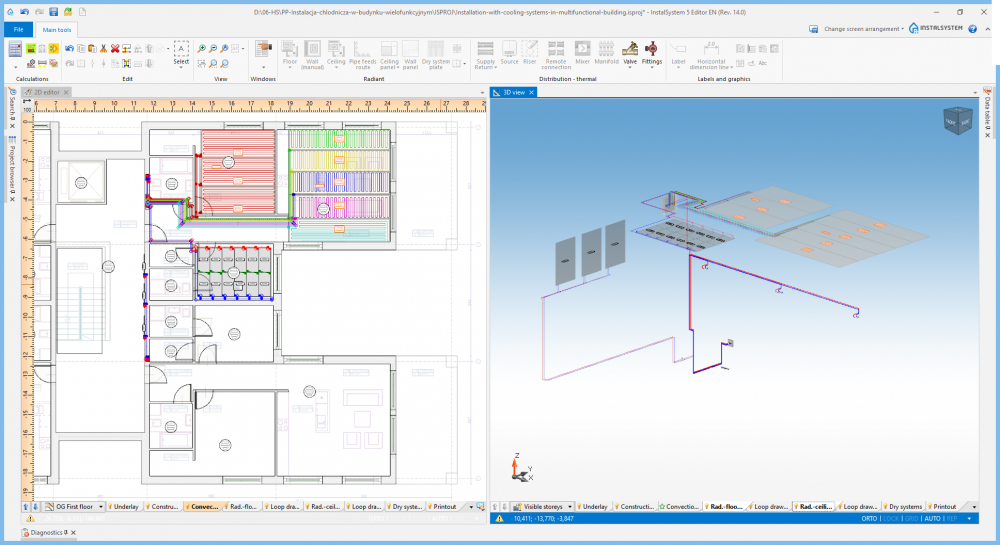
Project illustrates an example how to design radiant cooling installation and convective installation in a mixed building type.
Source, which is common for all elements, gives temperature 9°C. It directly feeds terminal unit with imposed pressure drop simulating passive chilled beams.
It supplies cooling walls in the hall by mixer with temperature 18°C.
At the same time, medium is delivered to a manifold with mixing set, which feeds with temperature 18°C:
- ceiling panels in serial-parallel system (Tichelmann system with common connection to manifold),
- wall pannel parallel connected in Tichelmann system,
- cooling ceiling parallel connected in Tichelmann system,
- cooling ceiling with classic feeds generates automatically.
| Project files
|
Installation with cooling systems in multifunctional building, isproj |
| Designed with | InstalSystem 5 Rev. GOLD Rev. 14.0 |
| Required modules | Base module Radiant loop systems Radiant panel systems Cooling systems Heating systems |
| Project range | Radiant cooling and panel cooling systems |
| Used catalogues |
Basic radiant systems |
| Type of building | multifunctional building with basement 4-storey |
| Building structure | Base drawing basement, dwg Base drawing ground floor, dwg Base drawing first floor, dwg Base drawing attic, dwg |
| Drawings range | Plan view |
| Prepared by | www.instalsoft.com |
| Legal disclaimer | The whole file or parts of the project may be copied |
| Calculation results | Full printout, xls Full printout, pdf General cooling results, pdf Bill components, pdf Installation parameter, pdf |
| Drawing results | Basement, dwg Ground floor, dwg First floor, dwg Attic floor, dwg |

